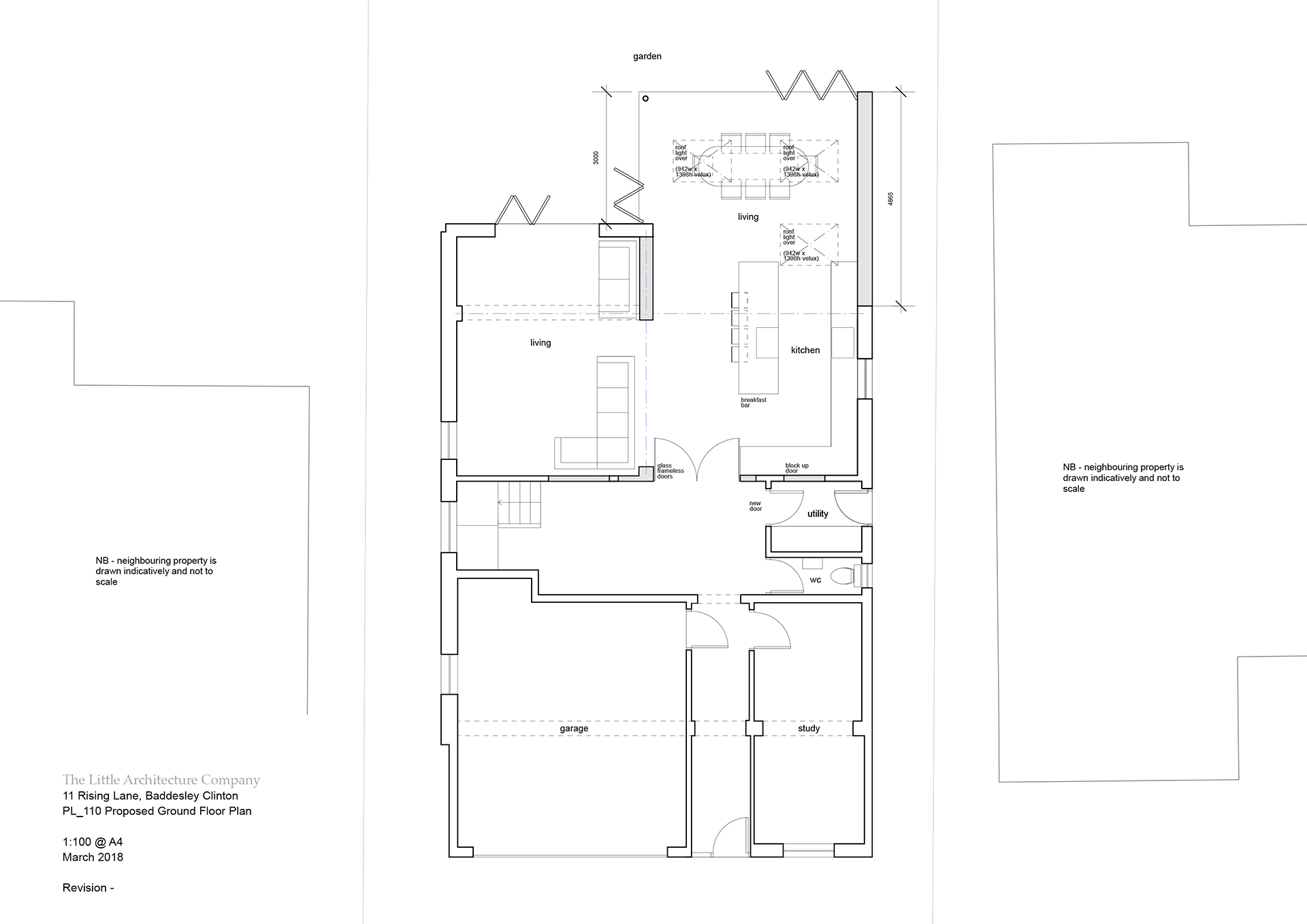
A 1990’s detached house in Baddesley Clinton, Warwickshire. Our client had a clear vision to extend the property and take advantage of views into the garden. Working together through a number of options, we finally arrived at a solution where the new kitchen area is opened up into the existing living area.
We have created a generous family space, filled with natural daylight, from which the fully retractable doors provide flush level access to an external seating area.



