extension work underway on site
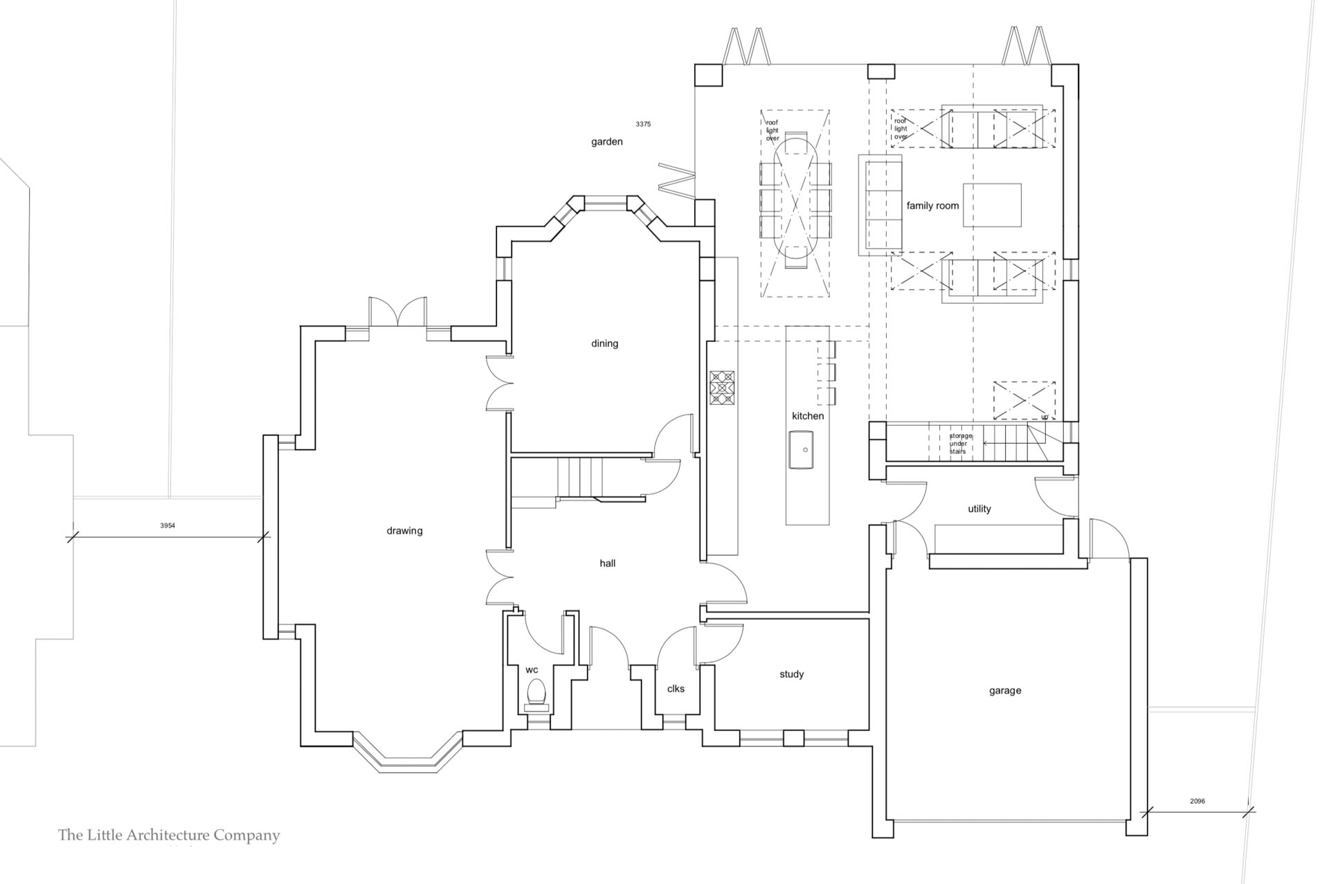
The project completed summer 2019.
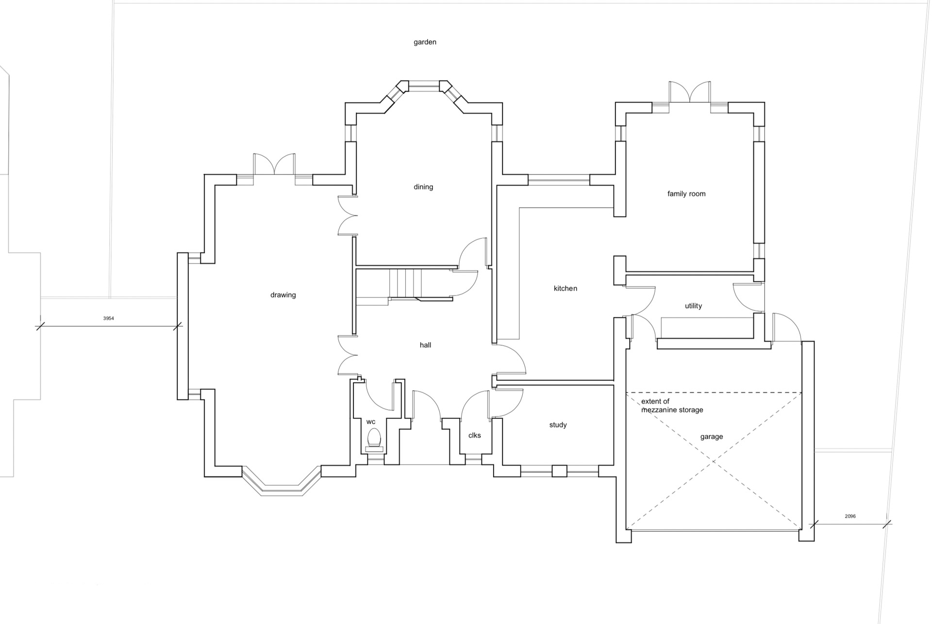
This 20-year-old detached house is located in a quiet cul-de-sac a short walk from the centre of Harborne. The client asked us to create a larger kitchen – family space with an improved relationship to the garden. Our design options suggested that a mezzanine could also be accommodated above the existing utility and garage, accessed from the new family room and providing further entertainment space.







