proposed remodel of front exterior
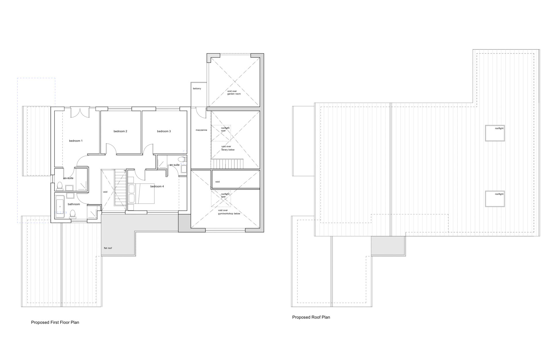
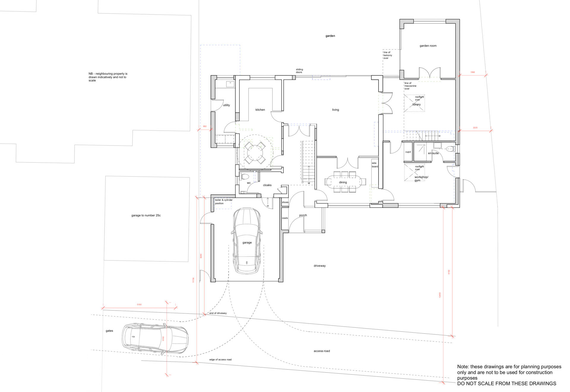
We were approached by the client to consider a ground floor side extension to this 1970s property. Our proposals included the continuation of the existing roof line which creates a dramatic monopitch vaulted ceiling over the new workshop and library, and the incorporation of a mezzanine reading gallery above.
This gallery space terminates in a balcony overlooking the extensive gardens and the open countryside beyond. The first floor sees the careful reconfiguration of bedroom and bathroom accommodation to maximise space and garden views.
The project is due to commence on site in Spring 2020.









