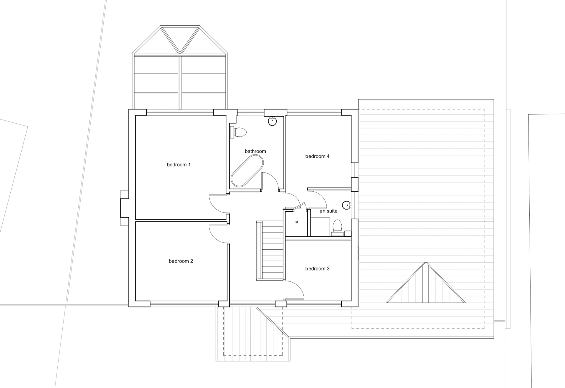
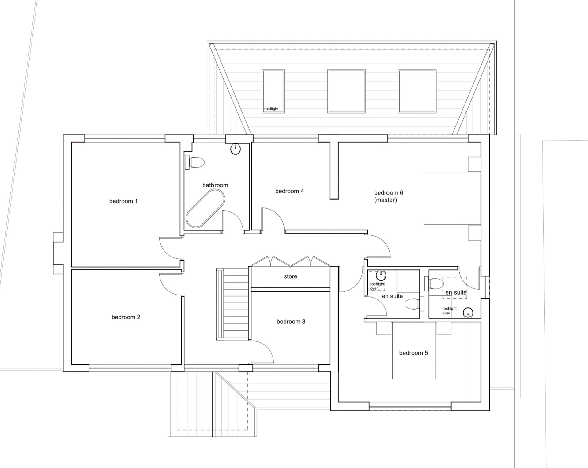
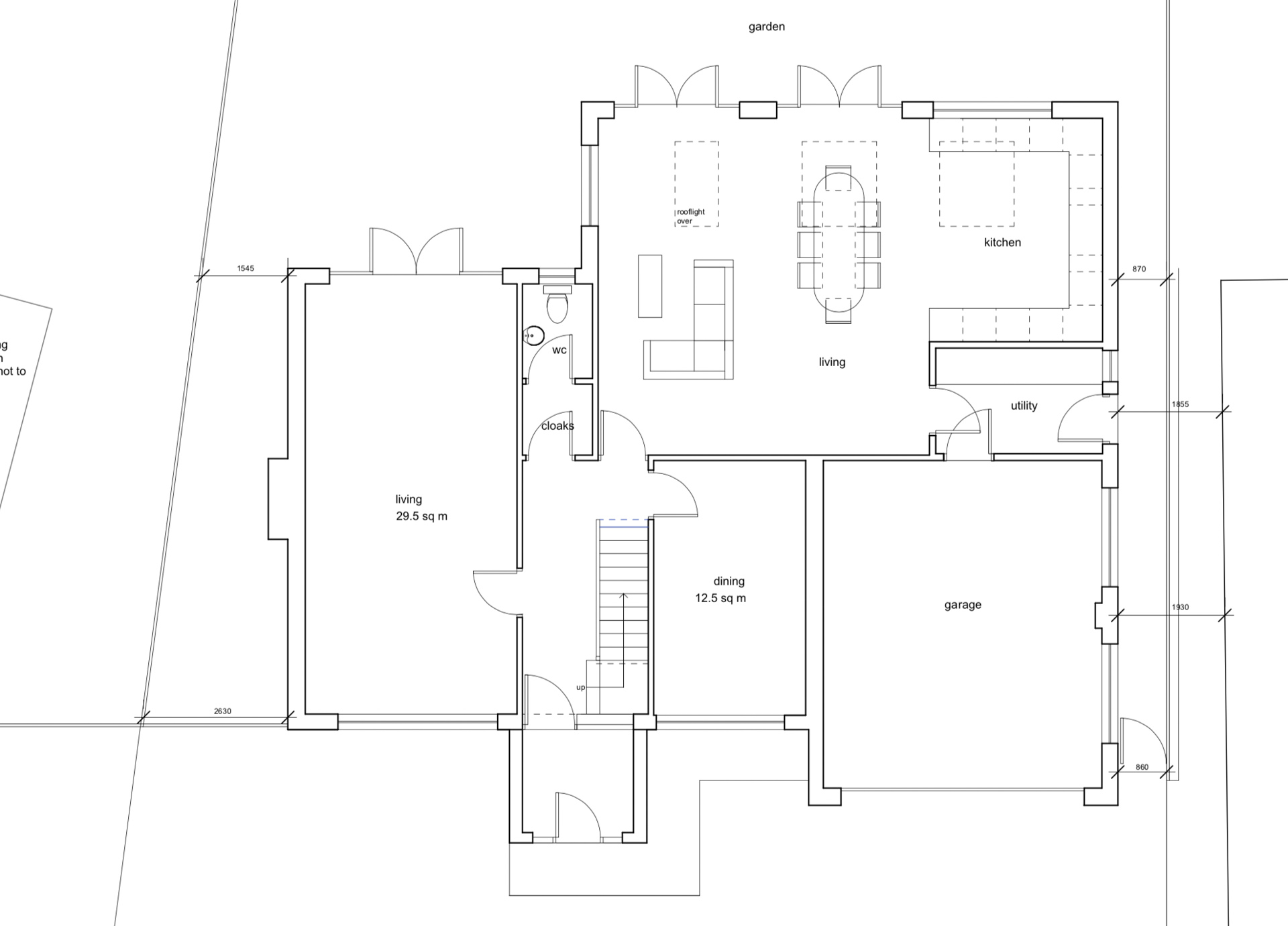
Completed project
Our client asked us to review the reception and bedroom accommodation of this early 1970s detached property. The completed scheme includes the addition of a large family room / kitchen with views to the garden the creation of an additional 2 bedrooms and en suites.





