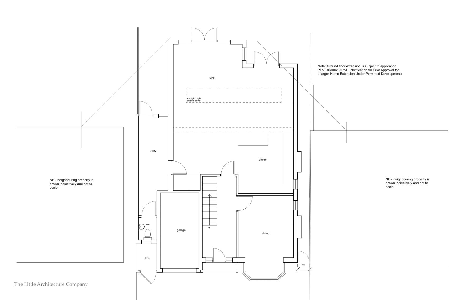
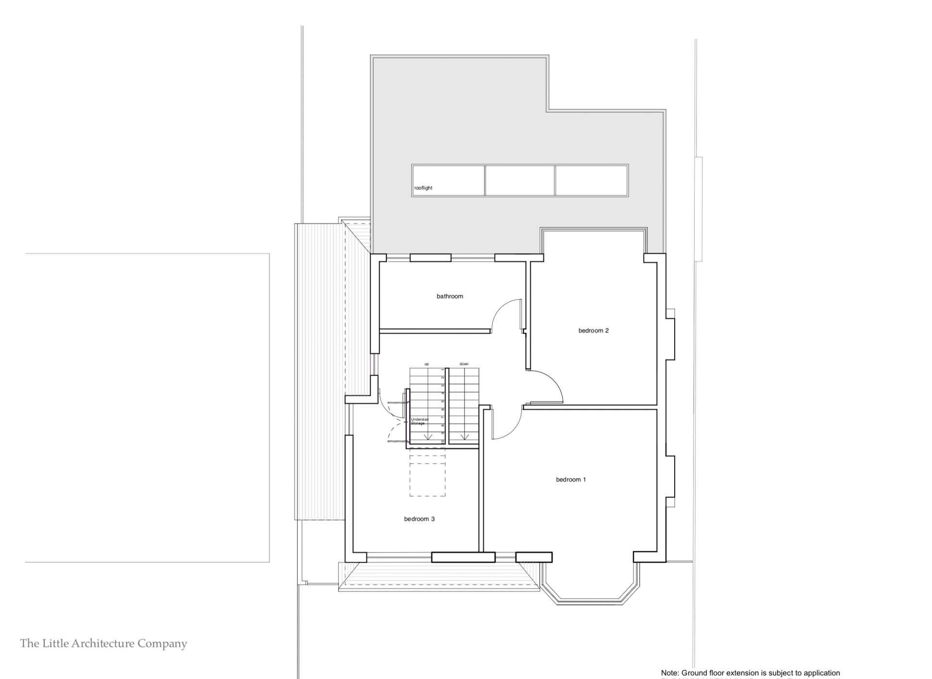
Our client approached us to develop a design for expanding the reception and bedroom accommodation at this detached Edwardian family house set in mature gardens. After detailed consultations with the planning department we were able to provide a large, top lit kitchen – family room at ground floor with rationalised first floor bedroom accommodation.
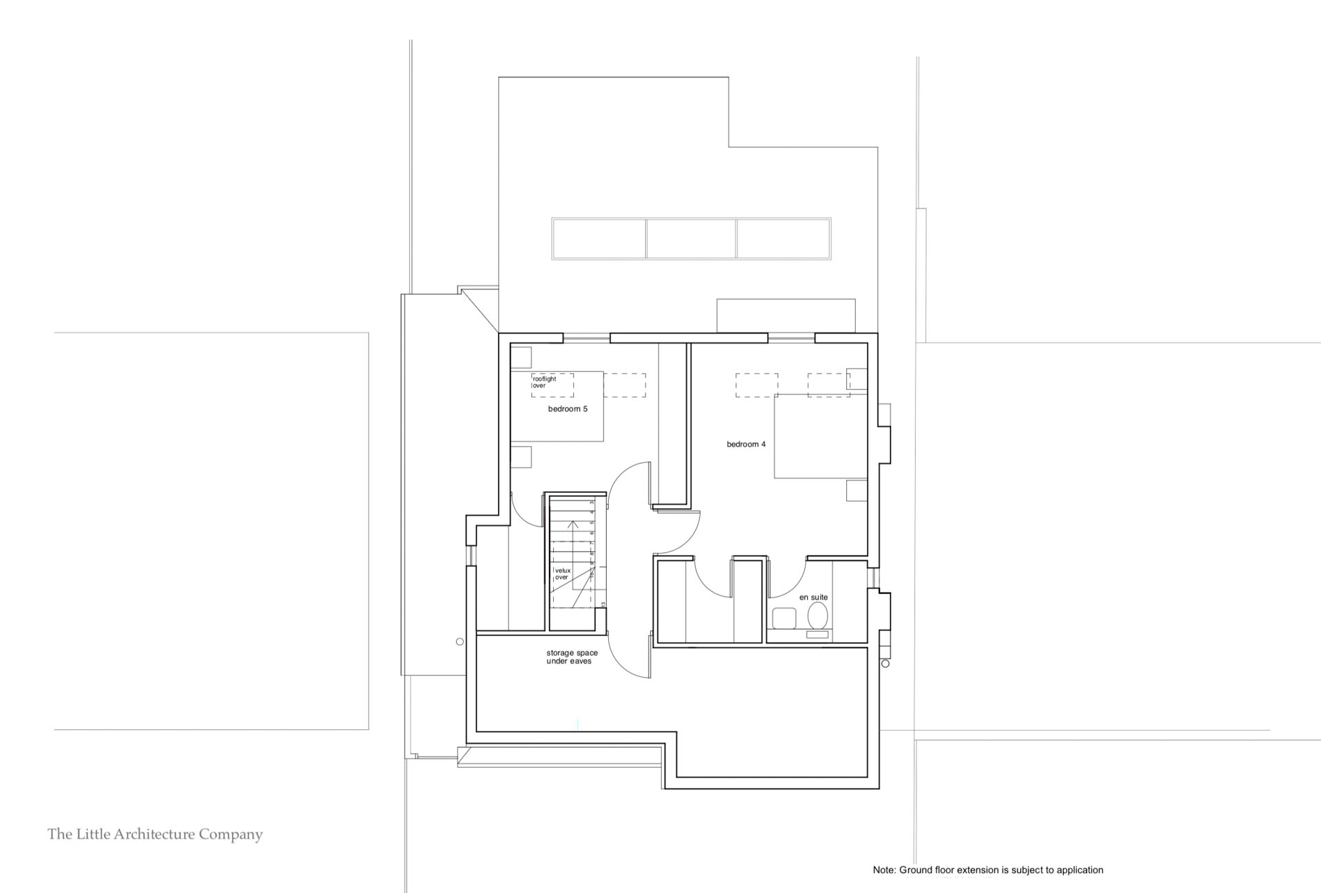
A sensitive hip to gable roof conversion with dormer windows overlooking the garden allowed the creation of a generous master bedroom suite with vaulted ceiling, shower room, study and eaves storage.














