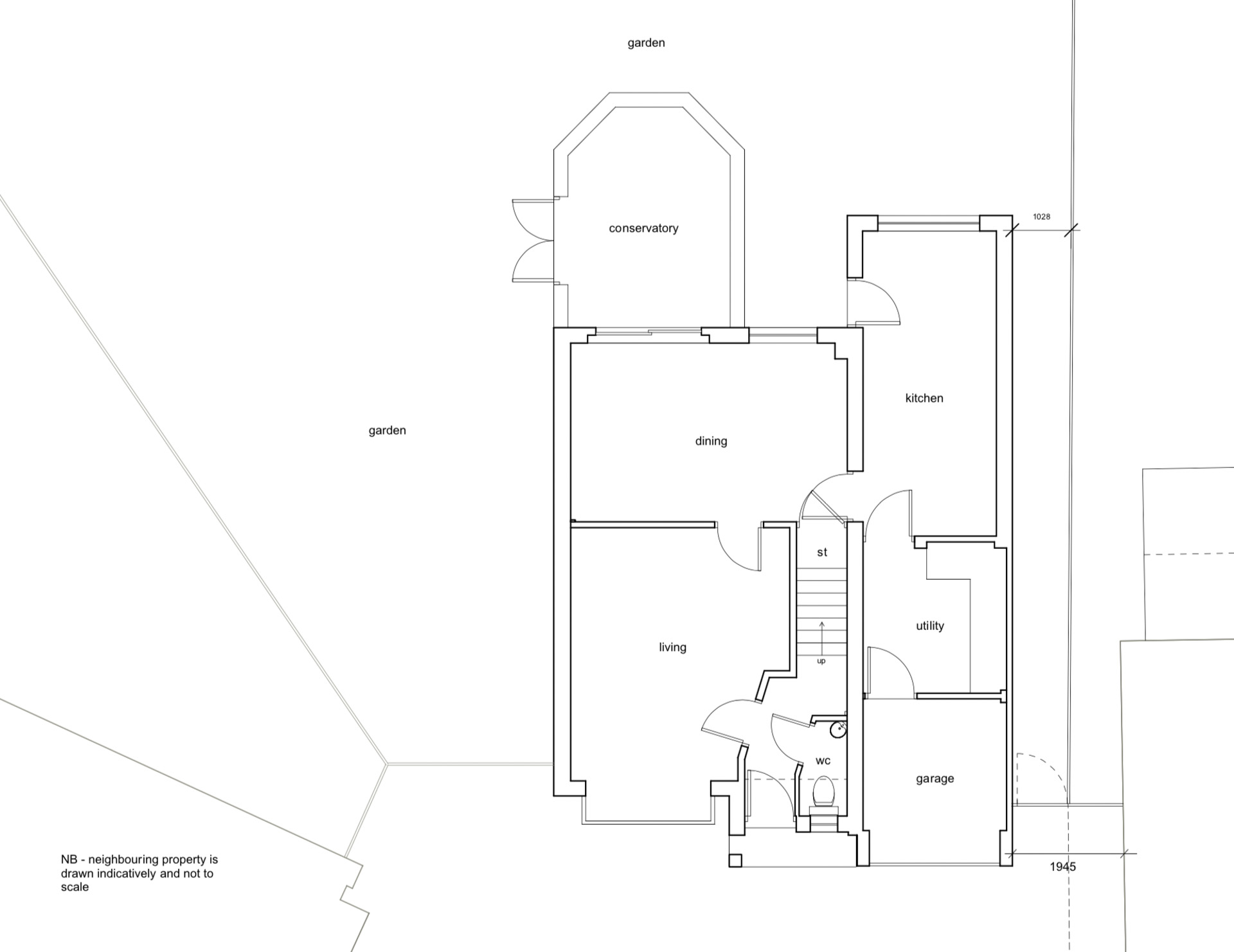
A 1980’s detached house located in the corner of a quiet cul-de-sac in Knowle. Sketch options demonstrated the potential to significantly increase accommodation for the family without impinging on the garden footprint.
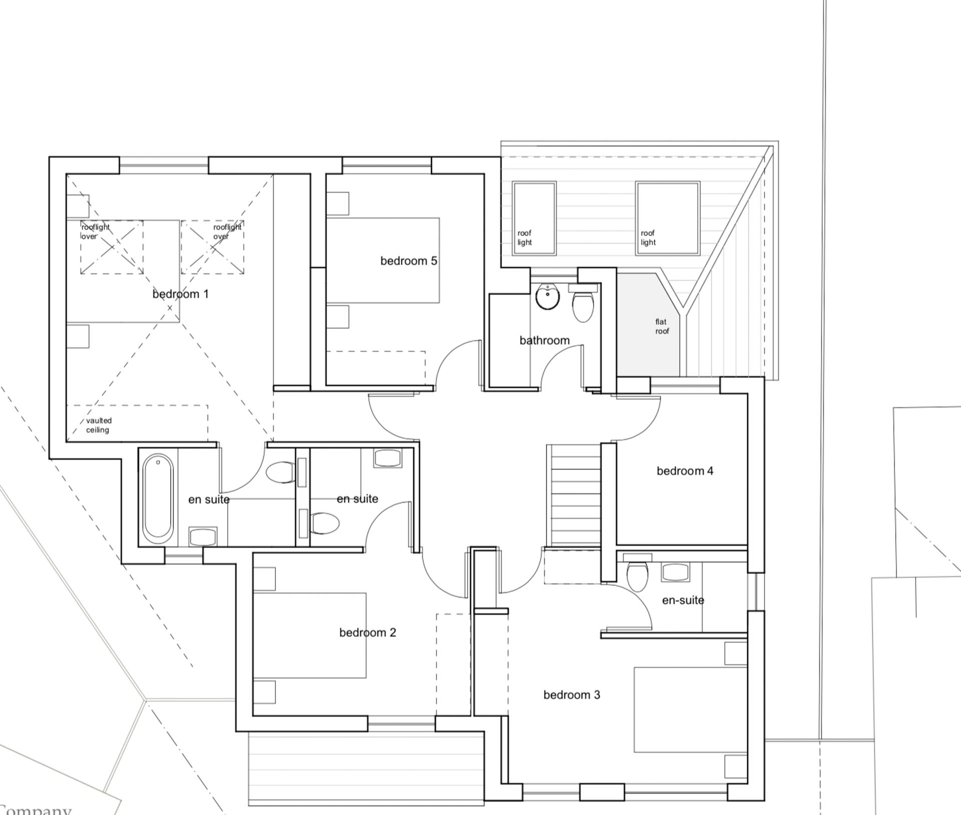
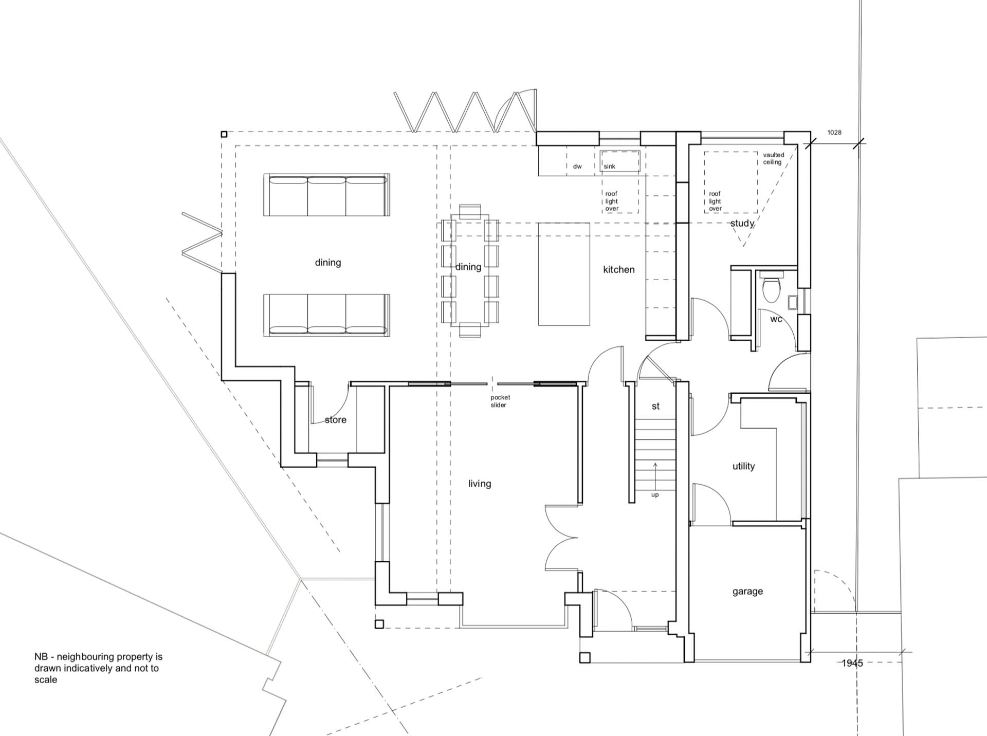
At first floor the house now benefits from 2 additional bedrooms and 3 new en suite bathrooms. A study and large kitchen/family room have been added at ground floor level with fully retractable corner glazing leading into the garden.








