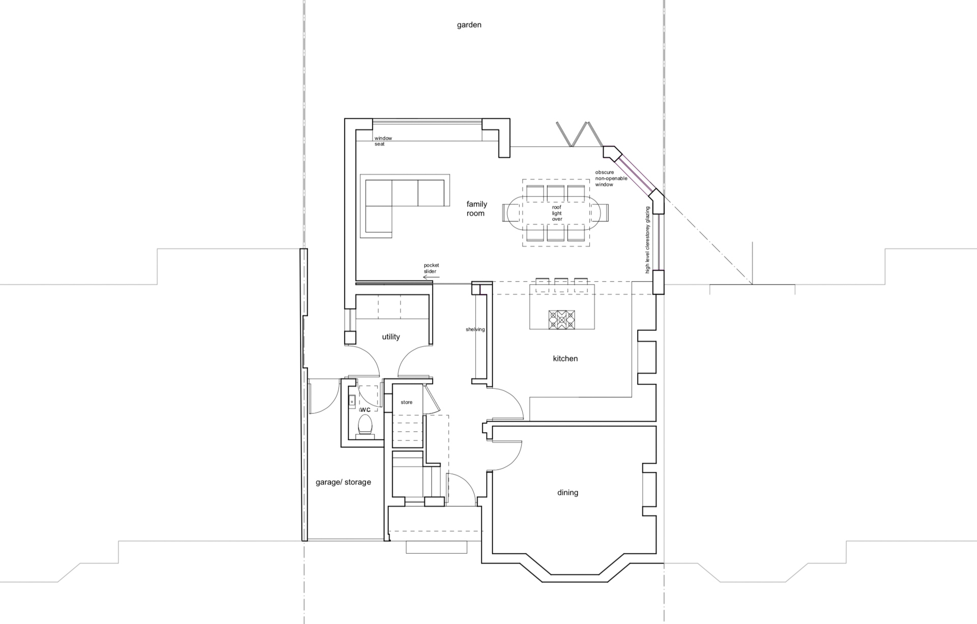
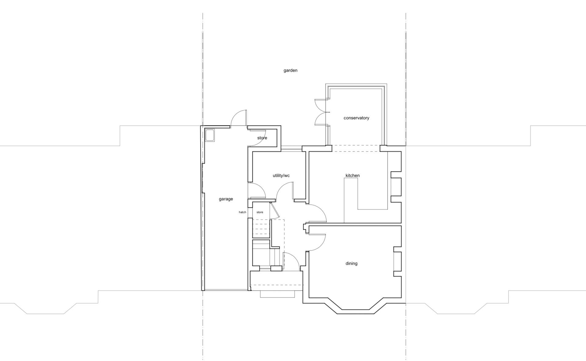
large extension and upstairs remodelling
An Arts and Crafts semi-detached house located in a leafy Birmingham suburb. At ground floor we designed a large top-lit kitchen/family room with a window seat and fully retractable doors leading into the mature gardens. The first floor benefits from a large additional master bedroom with vaulted ceilings and a new family bathroom.




