conservation area new build, front view visuals
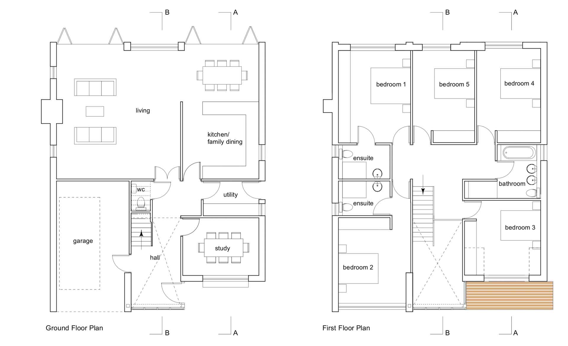
We were approached to design 2 new-build detached properties on a plot within an established residential neighbourhood, bordering one of the Solihull Conservation Areas. Each 5-bedroom house is approximately 2000sqft (excluding garage) over two and a half storeys.
The two proposed dwellings are a contemporary take on a traditional arts and crafts style. The asymmetric gable to each house allows a dramatic glazed entrance hall to be incorporated within the line of the roof at ground floor level.

