grade II listed property extension
The Old Coach House is a Grade 2 Listed property situated in the conservation area of Clun, a small market town in the AONB of South Shropshire.
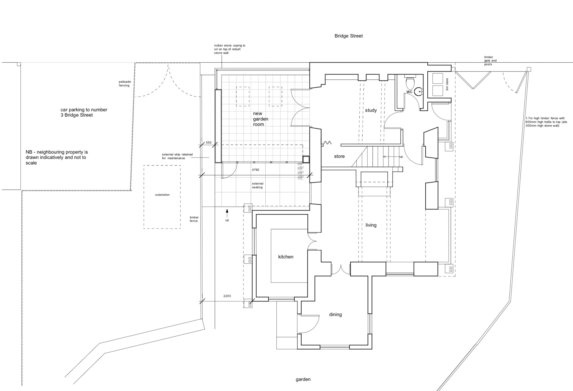
The new single storey Garden Room replaces an old conservatory, using an existing stone boundary wall as its façade onto the street to respect the traditional building line, and to create more usable space internally & externally that orientates the house towards the garden and river beyond. The façade facing towards the garden will be predominantly glazed with timber retractable doors and patent roof glazing above allowing light to flood into the room currently used an artists studio.











