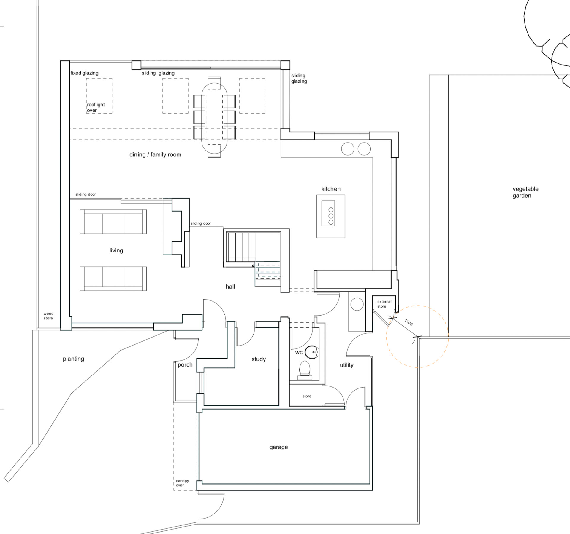
generous family kitchen-family room extension with linear windows
A 1970’s house set at the end of a quiet cul-de-sac with boundaries onto the Chiltern Railway Line and a delightful nature reserve. At ground floor we provided a generous family kitchen-family room with large format sliding doors and picture window linking the space to the garden, and linear windows framing views onto the vegetable patch adjacent to the railway.
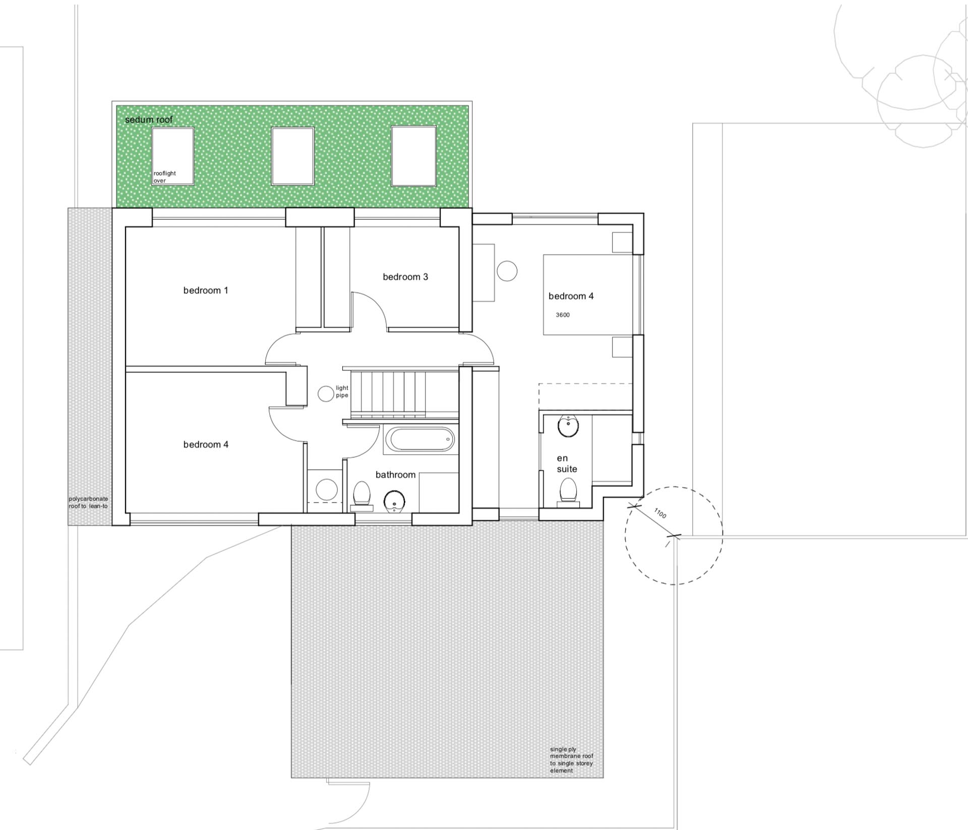
At first floor the rendered extension continues above the kitchen providing an additional master bedroom and en suite with views over the garden and nature reserve beyond.











