refurbishment and extension for this 1980s detached property
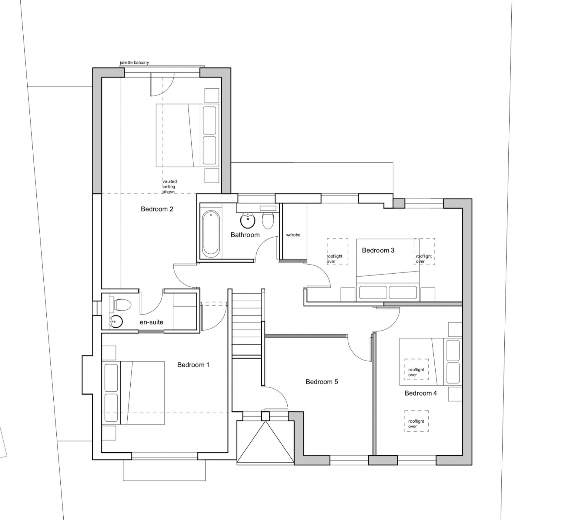
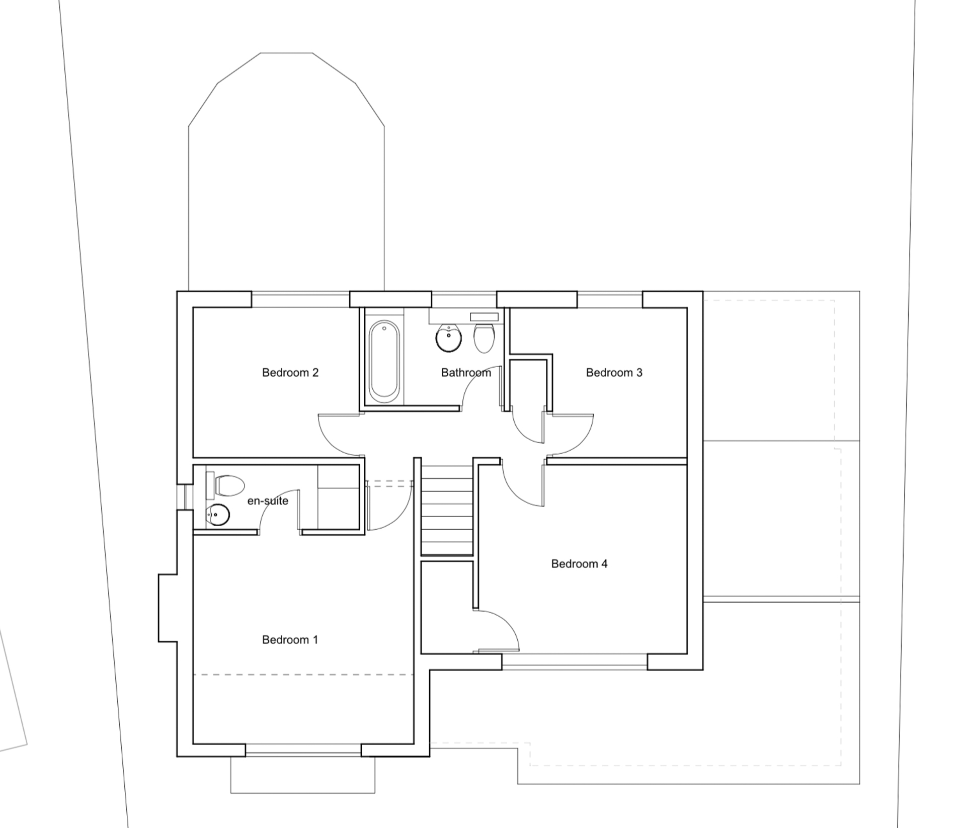
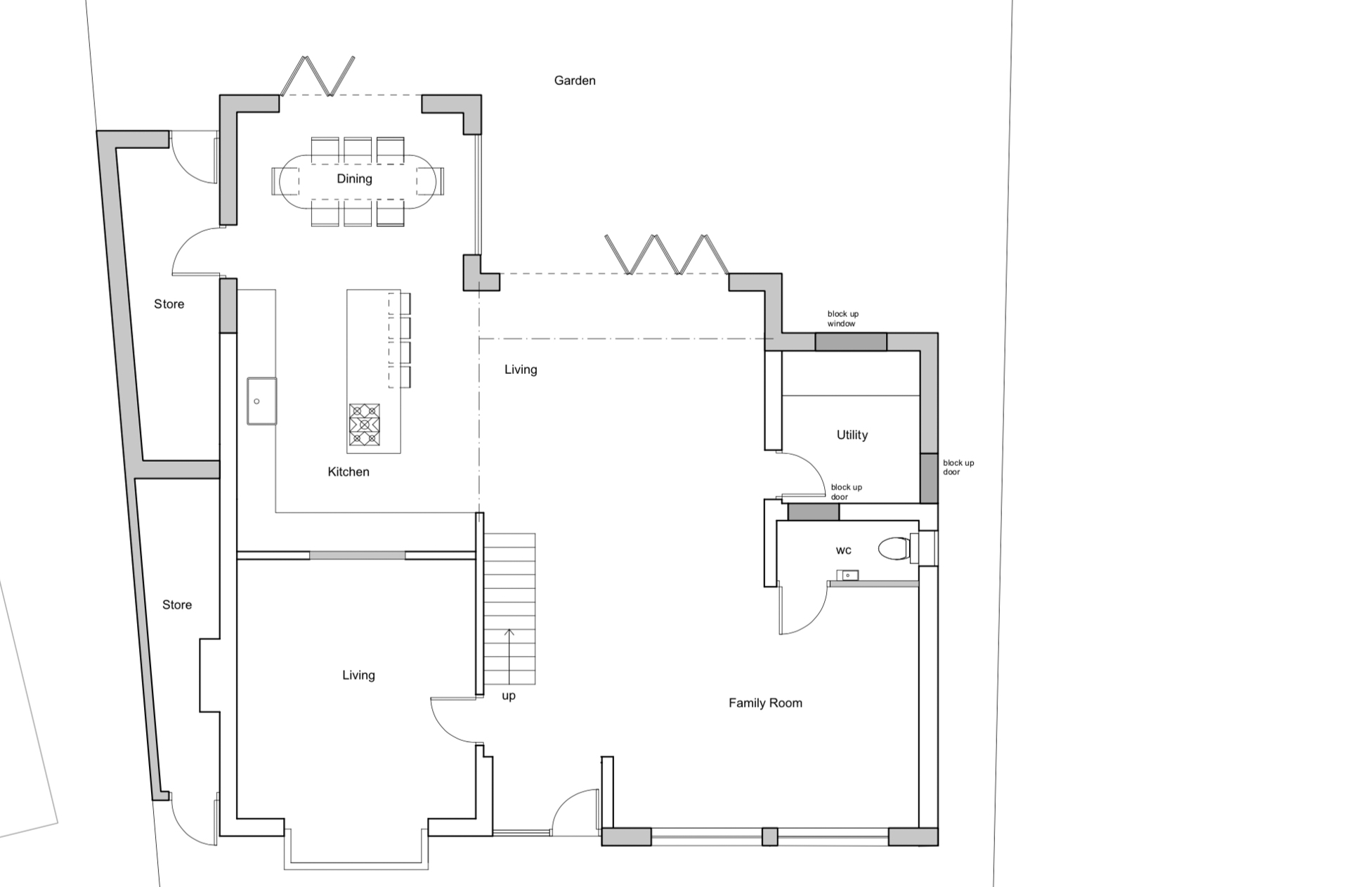
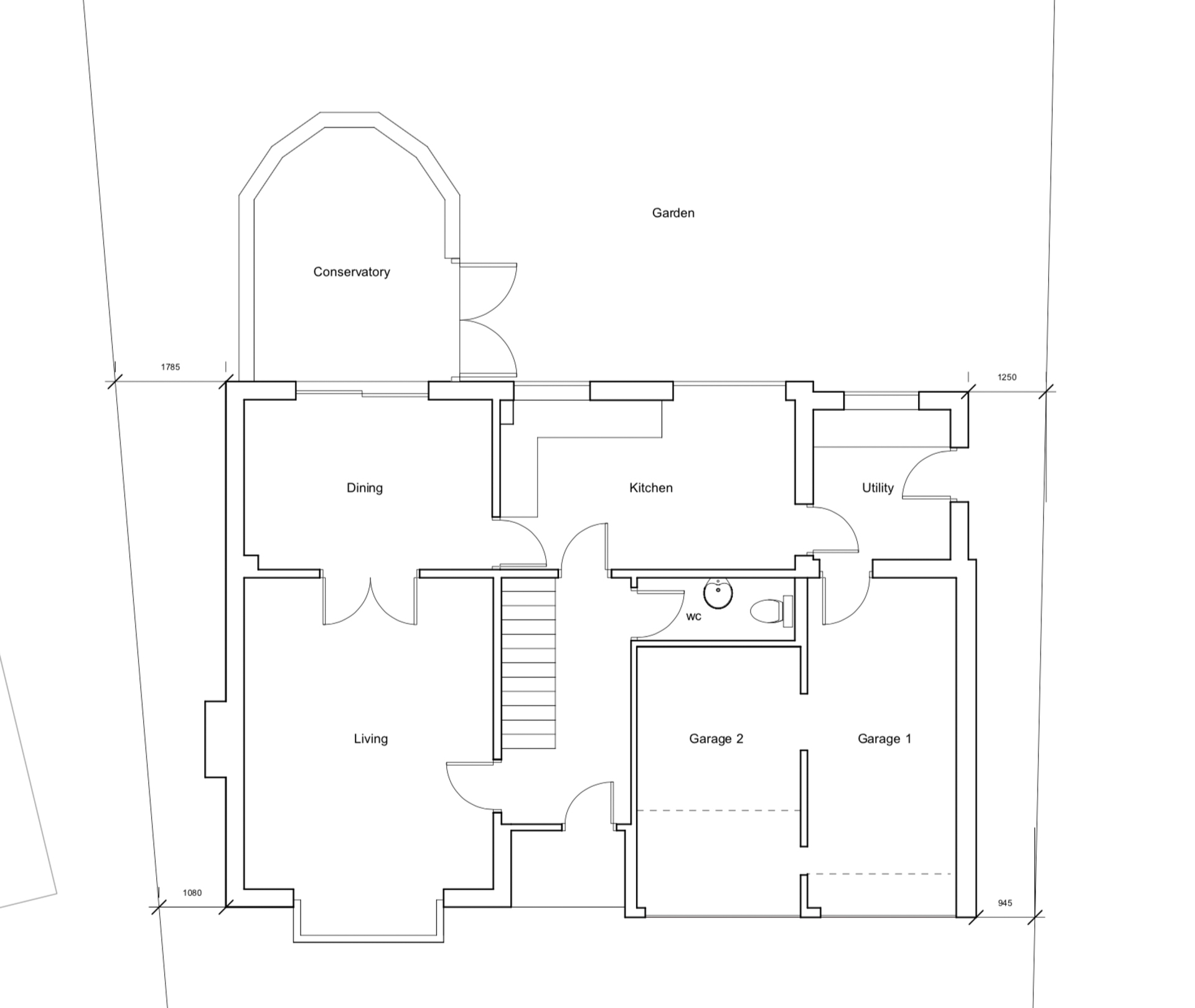
We were approached to carry out a major refurbishment and extension to this 1980s detached property. The conversion of the double garage and first floor extension above, enabled generous open plan kitchen and family accommodation to be provided at ground floor level, and rationalised bedroom accommodation with additional master suite at first floor, taking the property from 3 to 4 bedrooms without losing valuable garden space for the family.





